Részletes leírás
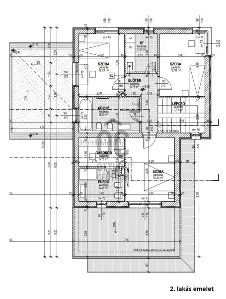
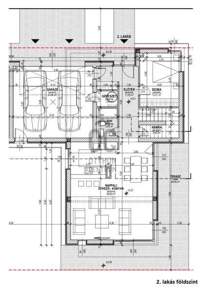
Debrecentől pár perces távolságra, Pallag irányában, új lakópark épül.A Nagyerdő közvetlen szomszédságában, nyolcholdas területen, 32 családnak nyújt otthont a lakópark.A telkek nagysága és elhelyezkedése lehetővé teszi, hogy olyan ingatlanok épüljenek, melyek elsődleges célja:- természetközeliség- intimitás- exkluzivitás- egyediség- zárt közösség.A teljesen közművesített telkeket térkövezett belső útról lehet megközelíteni, melyek közművilágítással ellátottak és a lakópark körbekerített, zárt rendszerű.Fekvésének köszönhetően további építkezés a lakóparkon túl nem lesz, ezért nem kell tartania a túlzsúfolt lakókörnyezettől.Pallagon a pár éve működő Nemzetközi Iskola, óvoda, középiskola lehetőséget nyújt gyermekei számára a tanulás és sport igényeinek.SPAR üzlet és reggeliző, kávézó nyújt a mindennapi teendőkhöz segítséget.Megközelíthetősége autóbusszal, kerékpárral és autóval is csak pár perc Debrecentől.AZ ÉPÍTKEZÉS BEFEJEZŐDÖTT AZ INGATLAN KULCSRAKÉSZ ÁLLAPOTBAN VÁRJA TULAJDONOSÁT!Az ikerházak 2.lakása: 190nm alapterületű, nappali + 4 szobás, 600 nm-es telekrésszel.Földszint:- nappali étkezőkonyha kialakítással és kamrával (50 nm)- dolgozószoba (12 nm)- zuhanyzó mosdóval (4 nm)- gépészet- dupla gépkocsi beállású garázs (34 nm)- terasz (40 nm)Emelet:- 3 hálószoba- 2 fürdőszoba- gardrób- mosókonyha- tetőterasz.Átadás: 2025. februárIlletékmentesség, CSOK-kal kapcsolatos és bankfüggetlen hitelügyintézést banki kollégánk teljeskörűen és ingyen bonyolítja Önnek irodánkban, da akár otthonában is!

Hajdú-Bihar megye, Debrecen
 

Ingatlan adatai
Irányár: 189 000 000 Ft
Típus: ház
Kategória: eladó
Alapterület: 191 m2
Fűtés: gáz (cirko)
Állapota: új
Szobák száma: 5
Építés éve: 2023
Szintek száma: -
További adatok
Telekterület: 600 m2
Kert mérete: 600 m2
Erkély mérete: 39 m2
Felszereltség: -
Parkolás: -
Kilátás: -
Egyéb extrák:  
-
Hirdető adatai
Hirdető neve: Otthon Centrum
Kapcsolattartó: Némethné Zsuzsa
Hirdető telefonszáma: +36 70 412 3861
Honlap: -

Üzenetet küldhet a hirdetőnek:
Az Ön neve:
Az Ön e-mail címe:
Üzenet: