Részletes leírás
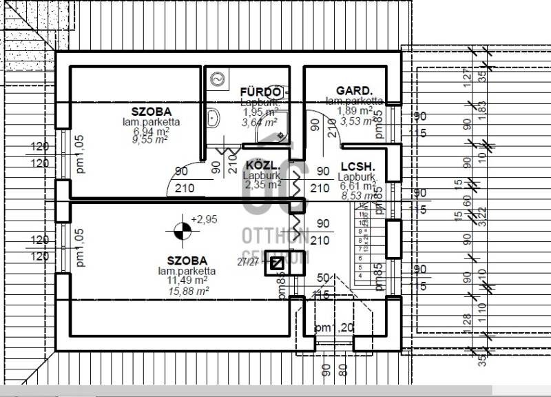
Eladó egy 100 négyzetméteres családi ház Bakonszeg csendes környékén, a festői Remete Tó szomszédságában. A 808 négyzetméteres telek tökéletes otthont kínál azoknak, akik szeretnék élvezni a nyugalmat és a természet szépségeit.Ez a két szintes ingatlan korábban bisztróként szolgált. A földszint és tetőtér praktikus elrendezése bőséges helyet kínál családi életre vagy kreatív tevékenységekre. A fűtést vegyes tüzelésű kazán és hűtő-fűtő klímák biztosítják, így mindig kellemes a hőmérséklet a házban.Az ingatlan ipari árammal rendelkezik, és H tarifa is elérhető, így az energiaigénye könnyedén kielégíthető. Az udvaron található egy 5 helyiségből álló tároló is, ideális megoldás a tárolási igények kielégítésére.Az ingatlan megnevezése hétvégi ház és melléképület.Bakonszeg elhelyezkedése ideális, mindössze 7 kilométerre kelet-északkeletre található Berettyóújfalu városától. A közelben Zsáka, Nagyrábé és Bihartorda is megtalálható, így a település kiválóan kapcsolódik a környező vidékekhez. Ha szeretne megtudni többet, hívjon minket még ma, és nézze meg, miért érdemes Bakonszegre költözni!3 szoba, 100 nm, Bakonszeg, Berettyóújfalu

Hajdú-Bihar megye, Bakonszeg
 

Ingatlan adatai
Irányár: 26 900 000 Ft
Típus: ház
Kategória: eladó
Alapterület: 100 m2
Fűtés: egyéb
Állapota: -
Szobák száma: 3
Építés éve: 2000
Szintek száma: -
További adatok
Telekterület: 818 m2
Kert mérete: 818 m2
Erkély mérete: -
Felszereltség: -
Parkolás: -
Kilátás: -
Egyéb extrák:  
-
Hirdető adatai
Hirdető neve: Otthon Centrum
Kapcsolattartó: Kristóf Enikő
Hirdető telefonszáma: +36 70 412 4386
Honlap: -

Üzenetet küldhet a hirdetőnek:
Az Ön neve:
Az Ön e-mail címe:
Üzenet: