Részletes leírás
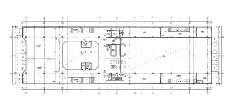
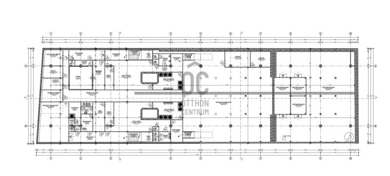
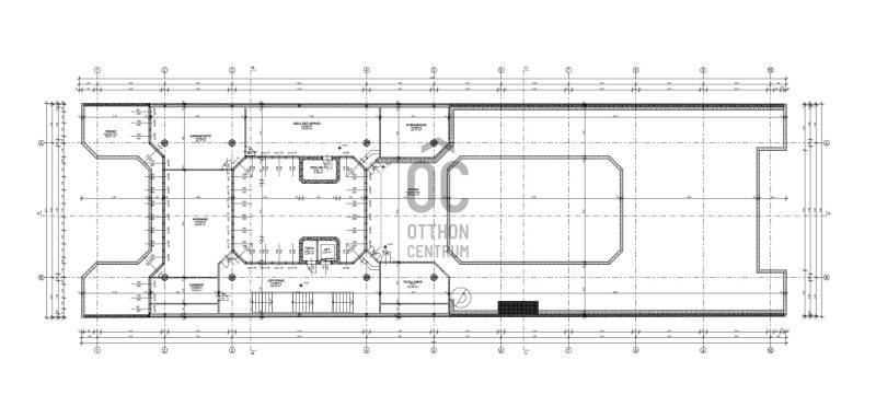
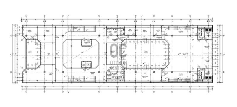
Fejlesztési projekt - Engedéllyel és kivitelezési tervekkel. A VII.kerületben megvételre kínálok egy teljesen önálló zárt sorúan beépített épületet.Az ingatlan a Erzsébet kőr út és a Rákóczi Út metszetében helyezkedik el. Épület alapterülete 1213 m2Pince + 5 emelet magasságig lett az épület felépítve.A teljes területe 6065 m2.Az épületnek 2 utca fronti bejárata van és 2 utcára néző ablakai.Maga a teljes épület felújításra szorul, jelenleg a bontási munkálatok a belsőtereknél befejeződtek. Az épület homlokzata érintetlen felújításra vár.Kivitelezési tervek jelenleg szálloda és konferenciai termek létesítését viteleznék ki. Érvényes építési engedélyek kell együtt eladó a projekt. Ha tovább kérdése lenne, kérem a megadott telefonszámon keressen fel.

Budapest, VII.kerület
 

Ingatlan adatai
Irányár: 3 373 597 021 Ft
Típus: kereskedelmi/ipari ingatlan
Kategória: eladó
Alapterület: 6 326 m2
Fűtés: -
Állapota: -
Szobák száma: -
Építés éve: 1949
Szintek száma: -
További adatok
Telekterület: -
Kert mérete: -
Erkély mérete: -
Felszereltség: -
Parkolás: -
Kilátás: -
Egyéb extrák:  
-
Hirdető adatai
Hirdető neve: Otthon Centrum
Kapcsolattartó: Hegedűs Máté
Hirdető telefonszáma: +36 70 412 3756
Honlap: -

Üzenetet küldhet a hirdetőnek:
Az Ön neve:
Az Ön e-mail címe:
Üzenet: