Részletes leírás
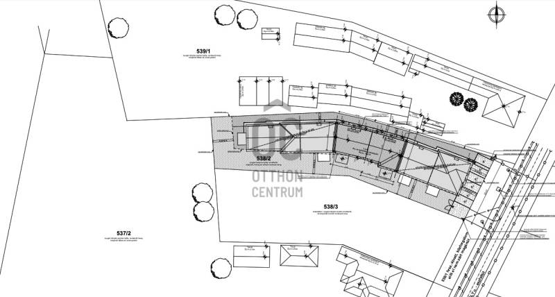
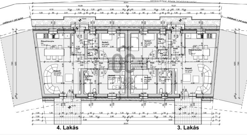
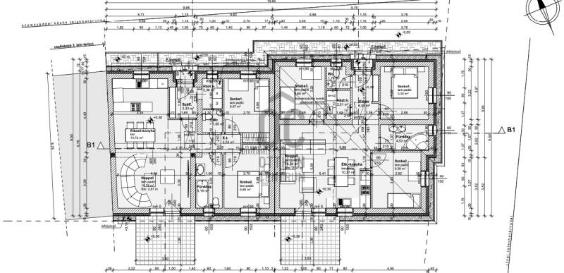
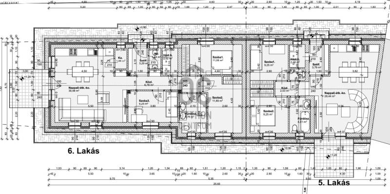
Projekt bemutatásaDEBRECENTŐL 6 KM-RE MIKEPÉRCSEN ÚJ ÉPÍTÉSŰ 6 LAKÁSOS SORHÁZI LAKÁSOK SAJÁT KERT KAPCSOLATTAL ELADÓK! Mikepércs, csendes, kertvárosias, aszfaltozott utcájában, új házak ölelésében épült. Közelében óvoda és bölcsőde, de a település központja is kényelmes séta távolságra található.MŰSZAKI JELLEMZŐK:- összközműves (víz, gáz, villany, csatorna)- padló 12 cm EPS, a födém 30 cm szigetelés- fafödém, a tető antracit színű Bramac betoncseréppel fedett- a tégla falazatot 15 cm-es EPS külső szigeteléssel, 12 cm-es XPSlábazati szigeteléssel látjuk el- 3 fázisú elektromos áram- 1 db beszerelt hűtő-fűtő klímaberendezés- fűtés, melegvízellátás kondenzációs kazánnal, a hőleadás minden helyiségben padlófűtéssel leszmegoldva- fehér 3 rétegűkiváló hang- és hőszigetelő műanyag nyílászárók, dekorfóliás belsőajtók szerelvénnyel- elektromos alumínium redőny előkészítés, rejtett redőnytok kialakítással- hálószobák, nappalik laminált parkettával, a többi helyiségek járólappal burkolt lesz- hidegburkolat 8000 Ft/nm, melegburkolat 6000 Ft/nm árban választható- utcafronti kerítés fehér Leier színezett zsalukőből, oszlopos kivitelben, betétekkel, elektromoskaputelefonnal- lakóegységet elválasztó kerítés fehér Leier szinezett zsalukő lábazat lemez felsőrésszel- riasztórendszer előkészítése egységek nélkül- térkővel burkolt járda lesz az épület körül 1 méter szélességben- módosítható belső válaszfalak, választható belső hideg- melegburkolatok, szaniterek.AZ ÁR NEM TARTALMAZZA:Telekhányad ára, beépített bútorok, konyhabútor, tűzhely, főzőlap, elszívó, lámpatestek, mosogató, redőny, fúrt kút, füvesítés, kertépítésKÖRNYÉK, KÖZLEKEDÉS:Az ingatlanok Mikepércs biztonságos, belvárosi részében, csendes utcában helyezkednek el. Gépkocsival, autóbusszal könnyedén megközelíthetőek.A tervezésnél fontos szempont volt az energia költségek alacsonyan tartása, mely a beépítésre tervezett anyagok és berendezések révén, a jelenkor követelményeinek maximálisan megfelel.A kivitelezők nyitottak arra, hogy az Ön igényeihez alakítsák új otthonát.VÁRHATÓ ÁTADÁS: 2026 SZEPTEMBERBabaváró támogatás, CSOK igénybe vehető illetékmentesség és 5%-os áfa visszaigénylés mellett.Bővebb tájékoztatásért, Műszaki tartalommal, helyszíni megtekintéssel kapcsolatban hívjon bizalommal!

Hajdú-Bihar megye, Mikepércs
 

Ingatlan adatai
Irányár: 56 463 000 Ft
Típus: ház
Kategória: eladó
Alapterület: 65 m2
Fűtés: gáz (cirko)
Állapota: új
Szobák száma: 3
Építés éve: 2026
Szintek száma: -
További adatok
Telekterület: 200 m2
Kert mérete: 200 m2
Erkély mérete: 12 m2
Felszereltség: -
Parkolás: -
Kilátás: -
Egyéb extrák:  
-
Hirdető adatai
Hirdető neve: Otthon Centrum
Kapcsolattartó: Szaszala Zsolt
Hirdető telefonszáma: +36 70 469 3681
Honlap: -

Üzenetet küldhet a hirdetőnek:
Az Ön neve:
Az Ön e-mail címe:
Üzenet: