Részletes leírás
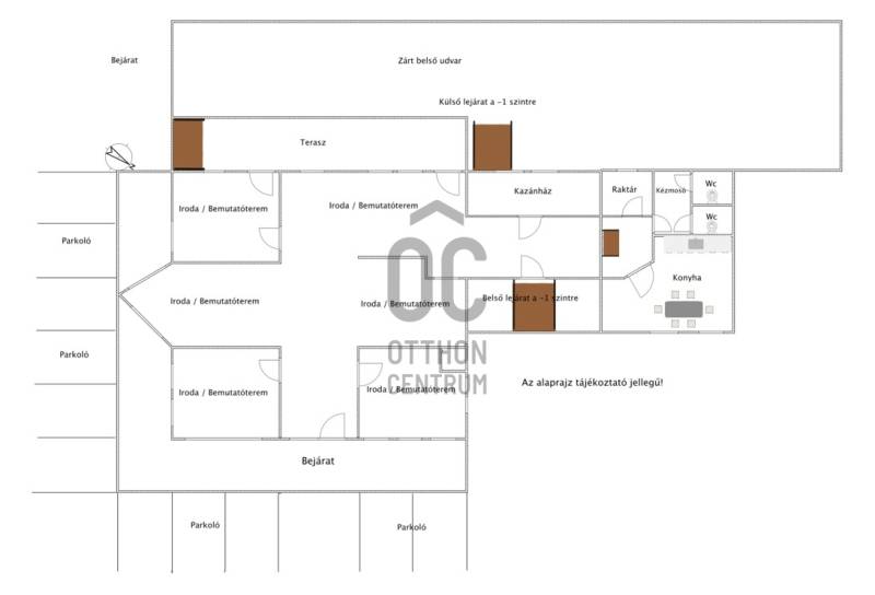
ÁRCSÖKKENÉS!SIÓFOK FORGALMAS részén, ÚJ BÉRLŐJÉT várja egy KIVÁLÓ állapotú ÜZLETHELYISÉG, IRODA!ELHELYEZKEDÉS:A TELEPÜLÉS BEMUTATÁSASiófok, Somogy vármegye északkeleti részén helyezkedik el, második legnépesebb település, területe 124,66 km2, gyönyörű és élénk város, amely mindig is nagy szerepet játszott a Balaton régió életében, mára pedig a Nyár Fővárosa Magyarországon. A Balatoni agglomeráció kiemelt települése, amely 24 településből álló Siófoki járás központja. Az itt élő emberek barátságosak és nyitottak. Siófok azonban nemcsak a nyár legnépszerűbb úti célja minden korosztály számára, hanem komoly üzleti lehetőségekkel rendelkező város is. Az elmúlt években sok pozitív változás történt Siófokon. Az infrastruktúra fejlesztése, a lakossági szolgáltatások bővülése, valamint a turizmus fellendülése mind hozzájárultak a város növekedéséhez és fejlődéséhez.Az INGATLAN ELHELYEZKEDÉSEAz ingatlan Siófok központi részén helyezkedik el forgalmas csomópont közelében. Megközelíthetősége, elhelyezkedéséből fakadóan kiváló.Gépjárművel, kerékpárral, gyalogosan, könnyen az egyik legnagyobb forgalmat lebonyolító útszakaszon de gyakorlatilag a település bármely pontjáról könnyen elérhetjük az ingatlant. AZ ÉPÜLET ISMERTETÉSE - AZ INGATLAN BEMUTATÁSAAz épület földszintjén 240m2 es utcai portállal rendelkező, kiváló állapotú, tágas terekkel, irodahelyiségekkel rendelkező, világos, modern, igényes burkolattal, kialakított üzlet, irodahelyiség.Valamint az -1 szintjén egy 60m2- es szintén kiváló álapotú, közvetlen a zárt belső parkolóba kijárattal rendelkező irodahelység található.-Fűtése: Korszerű Vaillant gáz cirkó, padlófűtéssel + radiátorokkal-Hűtése: Klímával megoldott-Saját mérőórákkal felszerelt (villanyóra, vízóra)-Riasztórendszerrel felszerelt-Mindkét szinten konyha, mosdók kialakítva-Parkolás az üzlet elött ingyenesen, illetve az épület hátsó részén zárt udvaron megoldott-vendéglátó jellegű tevékenységre nem használható!Mindkét szint kiváló műszaki és esztétikai állapotban van, szerkezetileg stabil, rajta meghibásodásra, vagy állékonyságát veszélyeztető problémára utaló jelektől mentes.-Hosszú távra kiadó, minimum 1-év-2 havi kaucióval és az első havi bérleti díjjal bérbe vehető!-Bérleti díj: 800.000.-Ft/hó + rezsiköltség -Azonnal birtokbavehető.Megtekintés előre egyeztetett időpontban lehetséges.Amennyiben szeretne egy állandóan forgalmas helyen lévő üzletet, irodát SIÓFOKON hívjon a hét bármely napján!

Somogy megye, Siófok
 

Ingatlan adatai
Irányár: 800 000 Ft/hó
Típus: iroda
Kategória: kiadó
Alapterület: 300 m2
Fűtés: -
Állapota: -
Szobák száma: -
Építés éve: 1995
Szintek száma: -
További adatok
Telekterület: -
Kert mérete: -
Erkély mérete: -
Felszereltség: -
Parkolás: -
Kilátás: -
Egyéb extrák:  
-
Hirdető adatai
Hirdető neve: Otthon Centrum
Kapcsolattartó: Földi Beatrix Ilona
Hirdető telefonszáma: +36 70 388 5411
Honlap: -

Üzenetet küldhet a hirdetőnek:
Az Ön neve:
Az Ön e-mail címe:
Üzenet: