Részletes leírás
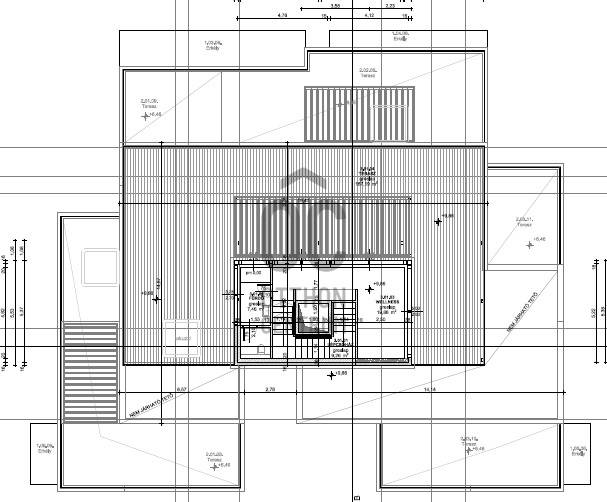
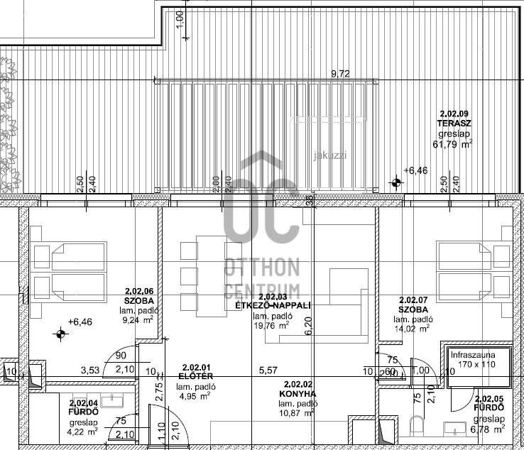
Vízparti új építésű lakást keres vagy befektetne Siófokon?A TÁRSASHÁZ közvetlenül a vízparton épül.13+40 egyedi elrendezésű, egész évben lakható eladó apartmant kínálunk, 50-120 m2 közötti méretekben, hogy Ön biztosan megtalálja az igényeinek megfelelőt.Átadás 2023 II. félév I.ütemKössék le fix áron most nyaralójukat !Ezüstparti luxus minőségi lakások!Balaton kedvelőinek kínáljuk eladásra.Az újonnan épülő, luxus kategóriás társasház villa jellegű épület, amely közvetlenül a vízparton, az Ezüstpart legszebb partszakaszán épül, kis lakóközösség számára.Az ingatlan 3 szintes, liftes téglaépület.Ez a lakás:Elosztása:nappali, amerikai konyha+ étkező, hálószoba, hálószoba előszoba, fürdőszoba+ WC, fürdőszoba+WC, tároló, wellness, belső lépcső , 2 db terasz2. emeleti frontlakás északi panorámával a gyönyörű Balatonra!Műszaki jellemzők:-3 rétegű argongázzal kitöltött műanyag nyílászárók , központi LG Multi V-5 hőszivattyús rendszerével kiépített hűtés-fűtés, 12 cm vastag külső hőszigetelő rendszere nemcsak szép, de kivételesen energia-hatékony. is.- az apartmanok hűtése-fűtése a mai kor követelményeinek megfelelően VRF inverteres levegő-levegő hőszivattyús rendszerrel kiépítve- fokozott hangszigetésű elválasztó falak- a homlokzaton mészkőburkolat és színes műgyanta kötésű színezővakolat- a teraszkorlátok rozsdamentes-szálcsiszolt oszlopok és kapaszkodók, ragasztott biztonsági üvegtáblákkal- a szintek megközelítését a földszintről és a parkolókból 8 személyes lift biztosítja- a folyosók, teraszok burkolata porcelán vagy gránitlapVárható átadás: 2023, 3.negyedévA hirdetésben szereplő képek látványtervek.A beruházó nagy tapasztalatokkal rendelkező, megbízható, referencia épületek, lakások hosszú sorával rendelkezik.Minden beruházását magas minőség, kiváló anyagok és kivitelezés jellemzi.Ne hagyja ki ezt a kivételes lehetőséget, nem sok ilyen színvonalú projektet, lakást talál a vízpart mellett.Hívjon minél előbb hogy ne maradjon le a biztos lehetőségről, hogy Öné legyen álmai nyaralója FIX ÁRON!Várom megkeresését a projekt lakásairól vagy más Balatonparti ingatlanok érdeklődésére.Projekt bemutatásaVízparti új építésű lakást keres vagy befektetne Siófokon? A TÁRSASHÁZ közvetlenül a vízparton épül.13+40 egyedi elrendezésű, egész évben lakható eladó apartmant kínálunk, 50-120 m2 közötti méretekben, hogy Ön biztosan megtalálja az igényeinek megfelelőt.Átadás 2023 II. félév I.ütemKössék le fix áron most nyaralójukat !Ezüstparti luxus minőségi lakások!Balaton kedvelőinek kínáljuk eladásra.Az újonnan épülő, luxus kategóriás társasház villa jellegű épület, amely közvetlenül a vízparton, az Ezüstpart legszebb partszakaszán épül, kis lakóközösség számára.Az ingatlan 3 szintes, liftes téglaépület.Műszaki jellemzők:-3 rétegű argongázzal kitöltött műanyag nyílászárók , központi LG Multi V-5 hőszivattyús rendszerével kiépített hűtés-fűtés, 12 cm vastag külső hőszigetelő rendszere nemcsak szép, de kivételesen energia-hatékony. is.- az apartmanok hűtése-fűtése a mai kor követelményeinek megfelelően VRF inverteres levegő-levegő hőszivattyús rendszerrel kiépítve- fokozott hangszigetésű elválasztó falak- a homlokzaton mészkőburkolat és színes műgyanta kötésű színezővakolat- a teraszkorlátok rozsdamentes-szálcsiszolt oszlopok és kapaszkodók, ragasztott biztonsági üvegtáblákkal- a szintek megközelítését a földszintről és a parkolókból 8 személyes lift biztosítja- a folyosók, teraszok burkolata porcelán vagy gránitlapVárható átadás: 2023, 3.negyedévA hirdetésben szereplő képek látványtervek.A beruházó nagy tapasztalatokkal rendelkező, megbízható, referencia épületek, lakások hosszú sorával rendelkezik.Minden beruházását magas minőség, kiváló anyagok és kivitelezés jellemzi.Ne hagyja ki ezt a kivételes lehetőséget, nem sok ilyen színvonalú projektet, lakást talál a vízpart mellett.

Somogy megye, Siófok
 

Ingatlan adatai
Irányár: 255 270 000 Ft
Típus: nyaraló
Kategória: eladó
Alapterület: 101 m2
Fűtés: -
Állapota: új
Szobák száma: 3
Építés éve: 2022
Szintek száma: -
További adatok
Telekterület: -
Kert mérete: -
Erkély mérete: 57 m2
Felszereltség: -
Parkolás: -
Kilátás: kertre néző
Egyéb extrák:  
-
Hirdető adatai
Hirdető neve: Otthon Centrum
Kapcsolattartó: Horváthné Virág Tímea
Hirdető telefonszáma: +36 70 469 3981
Honlap: -

Üzenetet küldhet a hirdetőnek:
Az Ön neve:
Az Ön e-mail címe:
Üzenet: