Részletes leírás
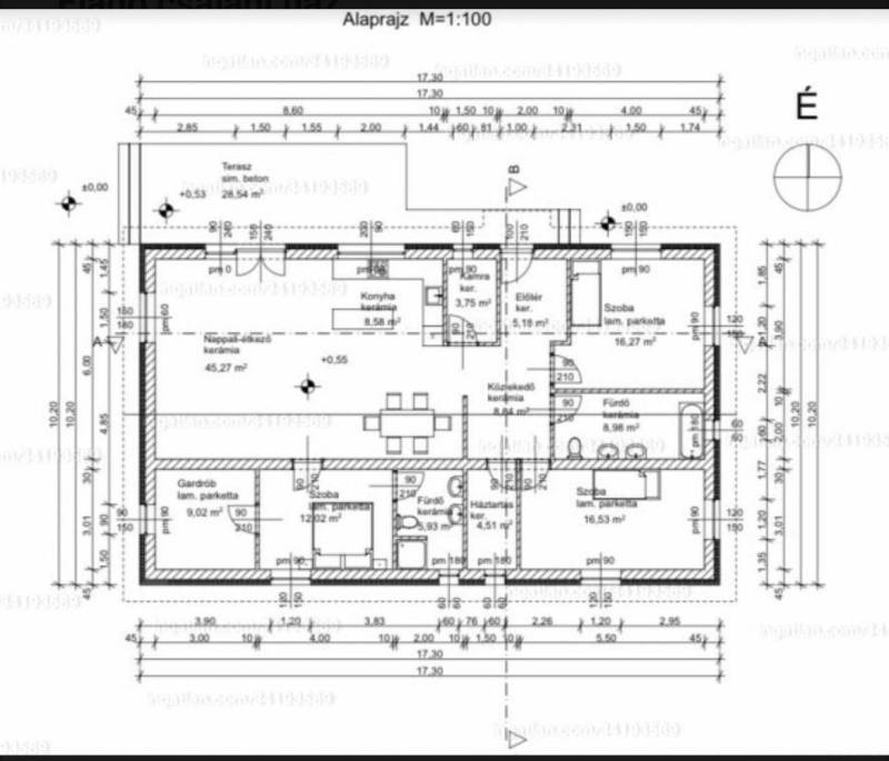
Piliscsaba Garancsligeten eladó egy 2520 nm-es örökpanorámás telken épülő 150 nm-es családi ház.Az épület főfalai Porotherm X- therm 30 as téglából épültek, a tetőszerkezet masszív, ácsolt, rajta Bramac betoncserép fedéssel. Az eredeti tervek alapján 3 hálószoba, az egyik gardróbbal + nappali konyha, kamra, gépészeti helyiség kerülhet kialakításra. A helyiségbeosztáson még lehet módosítani!A nappali teraszkapcsolattal lett tervezve. Minden közmű a telken belül van! Az ingatlan területén több autóbeálló is kialakítható, esetleg több állat ( Kutyák, vagy ló) is tartható. A szomszédok csendesek, ami egyébként erre az egész városrészre jellemző.Az épület befejezett állapotában 150 M Ft, nem kell szakemberek után járni, a hátralévő munkálatok elvégzését a kivitelező vállalja. A ház energiaellátását hőszivattyúval tervezték. Ipari áram, H tarifa!A telken áll még egy új, 15 nm-es faház is!Piliscsaba központja kocsival 3 perc, a vasútállomás és a buszmegálló szintén pár perc alatt elérhető.Vonattal Budapest Nyugati pályaudvar 35 perc!!Ha munka után a Pilis hegyeinek látványával pihenne, vagy home office-ban dolgozna ebben a csodás környezetben, ne is keressen tovább! Keressen bizalommal!Várom hívását hétvégén is! :)Lengyel Katalin

Pest megye, Piliscsaba
Piliscsaba eladó ház 

Ingatlan adatai
Irányár: 98 000 000 Ft
Típus: ház
Kategória: eladó
Alapterület: 150 m2
Fűtés: -
Állapota: -
Szobák száma: 4
Építés éve: 2024
Szintek száma: -
További adatok
Telekterület: 2 520 m2
Kert mérete: 2 520 m2
Erkély mérete: -
Felszereltség: -
Parkolás: -
Kilátás: -
Egyéb extrák:  
-
Hirdető adatai
Hirdető neve: Szőnyi Home 2020 Bt.
Kapcsolattartó: Lengyel Katalin
Hirdető telefonszáma: +36202515791
Honlap: -

Üzenetet küldhet a hirdetőnek:
Az Ön neve:
Az Ön e-mail címe:
Üzenet: