Részletes leírás
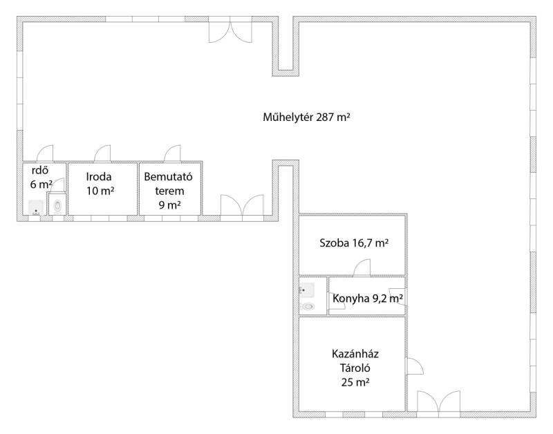
Vecsésen a Liszt Ferenc utcában 1112 m2-es telken eladó egy 363 m2-es területtel rendelkező gépesített ablak és belső ajtók gyártására szakosodott asztalos üzem.Az üzem tartozásmentes, könyvelt Kft.-vel, érvényes működési engedéllyel együtt eladó.A beton sávalapra téglából épült ingatlan 3 szakaszban készült, 1982-ben, 1993-ban és 2010-ben. Kialakításra került egy iroda, bemutatóterem, fürdő, mellékhelyiségek kazánház, garzon lakás és műhelytér. A nyílászárók saját gyártású fa thermó üvegekkel szereltek. Fűtésről vegyes tüzelésű kazán gondoskodik radiátoros hőleadással.Az ingatlanhoz tartozik egy 108 m2-es nyitott, padlóburkolattal ellátott szín, mely raktárnak van kialakítva.A biztonságért kamera és riasztórendszer felel.Gépek:-Paoloni csiszológép-Paoloni ST 98 kontaktcsiszoló-Paoloni TA50p ablakgyártó marógép-Paoloni TC1200 asztali marógép-OAV szalgfűrész-Veba 400-as abrikter /gyalugép/-Robland D630 gyalugép-Futura 4 fejes gyalugép-Lapszabászgép-Asztali körfűrész-Toronyfúró-LT 270 kompresszor-Központi porszívóA marógépekehez számtalan marófej tartozik.Villamos áram terhelhetősége: 3X50AINGYENES hitel tanácsadás !BANKFÜGGETLEN hitelcentrumunk az összes elérhető bank és hitelintézet ajánlatát versenyezteti az Ön kedvéért, ráadásul DÍJMENTESEN.- Egyedi, bankfiókban nem elérhető kamat- és díjkedvezmények- Hitelképesség vizsgálat- Idő, energia és pénz megtakarítás- Teljes hivatali ügyintézésAmennyiben hirdetésem felkeltette az érdeklődését vagy egyéb információra van szüksége hívjon bizalommal!

Pest megye, Vecsés
 

Ingatlan adatai
Irányár: 279 000 000 Ft
Típus: kereskedelmi/ipari ingatlan
Kategória: eladó
Alapterület: 363 m2
Fűtés: -
Állapota: -
Szobák száma: -
Építés éve: -
Szintek száma: -
További adatok
Telekterület: -
Kert mérete: -
Erkély mérete: -
Felszereltség: -
Parkolás: -
Kilátás: -
Egyéb extrák:  
-
Hirdető adatai
Hirdető neve: GDN Ingatlanhálózat
Kapcsolattartó: Tóth Péter
Hirdető telefonszáma: +36-30-237-4705
Honlap: -

Üzenetet küldhet a hirdetőnek:
Az Ön neve:
Az Ön e-mail címe:
Üzenet: