Részletes leírás
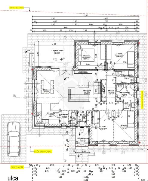
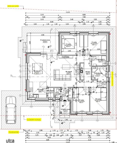
Győr közelében Rábapatonán, újonnan épülő, igényes kialakítású, tégla építésű családi ház leköthető.A nappali + négy szobával(vagy akár több szobával is kérhető ) ingatlan alapterülete nettó 110 m2, mely igény szerint módosítható.A praktikusan tervezett házban a szobákon kívül tágas és napfényes amerikai konyhás nappali, gardrób, kamra, szélfogó, közlekedő, fürdőszoba, háztartási helyiség és egy külön mellékhelyiség is kialakításra kerül.Az élhető méretű telek összesen 1000 m2-es, mely 30%-ban beépíthető.A feltüntetett vételár a nettó emelt szintű fűtés kész árat és a telek árát tartalmazza! Továbbá az ár tartalmazza a komplett tervező díjat(gépészet, metszetek, statika, energetika, engedélyek), plusz egy inverteres(hűtő-fűtő) klímát!A részletes műszaki leírást és az Építőipari cég weboldalát kérésére e-mailben elküldöm.Más az elképzelése? Válassza ki Ön a saját elképzeléseinek megfelelő alaprajzot!Amennyiben teljesen egyedi tervezést szeretne, az is lehetséges!A képek látványtervek.Jól átgondolt tervezés, megfelelő szakmai tudás és háttér garantálja a MINŐSÉGI OTTHON megvalósítását!További kérdés esetén állok rendelkezésére!Amennyiben megbízható építtetőt szeretne, referenciamunkákkal, minőségi anyagokkal és kivitelezéssel, hívjon bizalommal akár hétvégén is!Teljes körű ügyintézéssel:- ügyvéd- biztosítás- hiteltanácsadás- Generálkivitelezés- teljeskörű ingatlanfelújítás- CSOK, babváró, áfa visszaigénylés - állunk rendelkezésére!

Győr-Moson-Sopron megye, Rábapatona
 

Ingatlan adatai
Irányár: 79 900 000 Ft
Típus: ház
Kategória: eladó
Alapterület: 110 m2
Fűtés: gáz (cirko)
Állapota: új
Szobák száma: 5
Építés éve: 2025
Szintek száma: -
További adatok
Telekterület: 1 000 m2
Kert mérete: 1 000 m2
Erkély mérete: 20 m2
Felszereltség: -
Parkolás: -
Kilátás: udvari
Egyéb extrák:  
-
Hirdető adatai
Hirdető neve: B&B Ingatlan powered by RH tanácsadói
Kapcsolattartó: Kolofon-Balogh Noémi
Hirdető telefonszáma: +36 70 412 5691
Honlap: -

Üzenetet küldhet a hirdetőnek:
Az Ön neve:
Az Ön e-mail címe:
Üzenet: