Részletes leírás
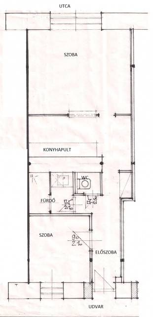
Újlipótvárosban, közvetlenül a Katona József utca mellett A Visegrádi utcában (Nyugati-Vígszínház között) szép állapotú, kulturált társasházban készül egy 2 külön nyíló szobás belső új-építésű lakás.
Már leköthető!

Egyedi gáz-cirkó fűtéses - ellentétben az Újlipótvárosban megszokott távfűtéssel.

Kisebbik szobájának ablaka udvarra néz, a nagyobbik szobájának ablakai utcára (délnyugati irányba).
A lakás az elrendezéséből kifolyólag még úgy is alakítható (vagyis kérheti úgy is a leendő vevő a kivitelezést), hogy a konyha és az utcai szoba közötti fal megszűnik, így egy kifejezetten tágas amerikai konyhás nappali alakulna ki.

A többi korábban épült lakásainkkal megegyező módon itt is az összes burkolat, szaniterek, konyhabútor, fűtésrendszer, csövek, vezetékek, ajtók is teljesen újonnan kerülnek beépítésre, sőt még a válaszfalak nagy része is.
A térkihasználtság legalább olyan jó, mint egy új építésű lakásnál.

A képek látványtervek, a már elkészült állapotot mutatják, mert a lakás még épülés alatt van.
Azonban a lakás megtekinthető élőben is még az elkészülés előtt.

Várható elkészülés: 2015. Október 22.

Budapest, XIII.kerület
Katona Józef utca 

Ingatlan adatai
Irányár: 25 000 000 Ft
Típus: lakás (tégla)
Kategória: eladó
Alapterület: 50 m2
Fűtés: gáz (cirko)
Állapota: új
Szobák száma: 2
Építés éve: -
Szintek száma: 3
További adatok
Telekterület: -
Kert mérete: -
Erkély mérete: -
Felszereltség: -
Parkolás: -
Kilátás: utcai
Egyéb extrák:  
kaputelefon, beépített konyhabútor, internet, kábeltévé, egyedi fűtés, tégla
Hirdető adatai
Hirdető neve: O. Csaba
Kapcsolattartó: -
Hirdető telefonszáma: 70/266-0504
Honlap: -

Üzenetet küldhet a hirdetőnek:
Az Ön neve:
Az Ön e-mail címe:
Üzenet: